
Exklusive Eigentumswohnung auf der Magdeburger Elbinsel Werder.
Diese Wohnung in der Gartenstraße 20b in 39114 Magdeburg ist etwas Besonderes in der Landeshauptstadt Magdeburg.
Eckdaten zur Wohnung:
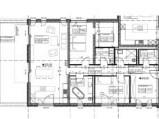
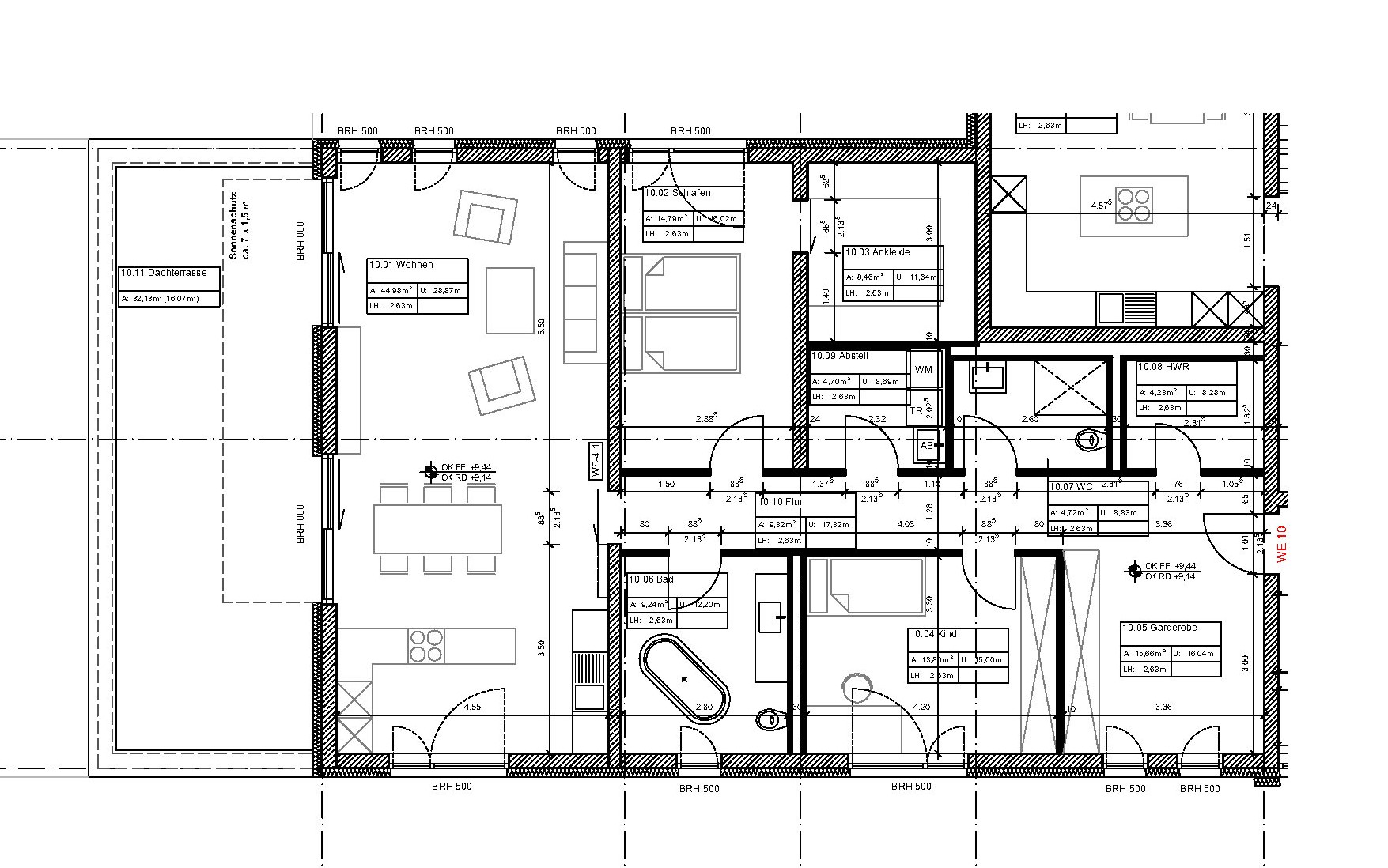
Wohnfläche 146,46 qm
3-Wohnräume (4 Wohnraum wäre möglich)
2 PKW-Tiefgaragenstellplätze und Keller
Kaufpreis: 589.000 € zzgl. Kaufnebenkosten
Maklerprovision 3,57 % inkl. Mwst. vom Kaufpreis
Besonderheiten der zur Wohnung:
hochwassersichere Grundstückslage
nur 50 m von der Elbe entfernt mit Elbblick
4.Obergeschoss
Fahrstuhl
barrierearm und altersgerecht
Sonnenterrasse mit ca. 30 qm nach Süden und freiem Rundumblick
2 große Glasschieb-Türen im Wohnzimmer
elektrische Außen-Sonnenschutzrollos an allen Fenstern
tiefe Fenster mit 50 cm Brüstungshöhe
Master-Bad mit freistehender Badewanne und Fenster
2.Bad mit Walkin-Dusche und Echtglasduschabtrennung
exklusive Einbaustrahler
Schlafzimmer mit großzügigen begehbarem Kleiderschrank
HWR mit Waschbecken und Anschlüssen für Waschmaschine + Trockner
Abstellraum
exklusive Einbauküche mit Markengeräten von Miele
Glasfasernetzanschluss
Die Wohnung ist leer und ein Einzug wäre zeitnah möglich
Auf dem Grundstück Gartenstraße 20b / Markgrafenstraße entstand zum Ende 2016 ein exklusiver Neubau von 12 Wohnungen mit einer gehobenen Ausstattung. Die Gartenstraße steigt zur Markgrafenstraße an und gibt dem Grundstück eine gewisse Hanglage. Dadurch ist das Wohngebäude zur nordöstlichen und nördlichen Seite teilweise straßenbegleitend umschlossen.
Die besondere Wohnung verfügt ist sehr großzügig gestaltet und aktuell als 3-Raum-Wohnung ausgelegt, mit einem weitem Entree-Bereich. Bei Bedarf kann auch ein 4.Wohnraum ohne großen baulichen Aufwand gestaltet und integriert werden.
Die architektonische Formsprache des exklusiven Wohnhauses garantiert ein exklusives Wohnen. Die Wohnungsgröße beträgt 146,46 m² und befindet sich im 4.Obergeschoss. Die Wohnung verfügt über eine komfortable Raumhöhe von 2,63 m. Im Erdgeschoss sind neben den Technikräumen, der Wohnungskeller und 2 große PKW-Garagenstellplätze untergebracht. Die Wohnung verfügt weiter über eine sehr hochwertige und luxuriöse Ausstattung. Die Ausstattungsdetails sind: Fahrstuhl, hochwertiger PVC-Designbelag, Fußbodenheizung, Master-Bad mit Fenster, elektrische Außen-Sonnenschutzrollos an allen Fenstern, Hauswirtschaftsraum mit Waschmaschinenanschluss, großzügiger Entreebereich im Flur, begehbarer Kleiderschrank im Schlafzimmer etc. Weiterhin ist eine hochwertige Einbauküche inklusive Markengeräten von Miele eingebaut, wie Backofen, Kühlschrank, Tiefkühlschrank, Induktionsfeld inklusive Abluft etc. Dies garantiert ein gehobenes Wohnen.
Der Kaufpreis beträgt 589.000 € inklusive der 2 PKW-Tiefgaragenstellplätze und aller beschriebenen Einbauten. Die Maklerprovision in Höhe von 3,57 % inklusive Mwst. wird vom Kaufpreis berechnet und wird fällig nach Abschluss eines notariellen Kaufvertrages.
Das Grundstück befindet sich auf dem Magdeburger Werder und somit in eine 1A-Lage der Landeshauptstadt. Die Wohnung verfügt über einen Elbblick, da die Elbe nur 50 m entfernt liegt. Durch die besondere Lage ist das Grundstück als hochwassersicher anzusehen und war auch beim Hochwasser 2013 nicht betroffen!
Eine Besichtigung ist nach Absprache gern jederzeit möglich und wir freuen uns auf Ihren Anruf.
Das Angebot wurde nach bestem Wissen und Gewissen erstellt. Wir haften nicht für fehlerhafte Angaben und Schreibfehler.
(Bitte klicken Sie zum Vergrößern auf das gewünschte Bild!)
- Luftbild Gartenstraße
- Ansicht
- Ansicht 2
- Ansicht 3
- Ausblick 1
- Ausblick 2
- Lageplan
- Erdgeschoss
- 4.Obergeschoss
- Grundriss Wohnung WE10
- Terrasse
- Terrasse
- Terrasse
- Ausblick
- Ausblick
- Ausblick
- Küche
- Küche
- Küche
- Küche
- Küche
- Küche
- Wohnzimmer
- Wohnzimmer
- Wohnzimmer
- Wohnzimmer
- Wohnzimmer
- Wohnzimmer
- Flur
- Flur und Entree-Bereich
- Schlafzimmer
- Ankleide
- Master-Bad
- Master-Bad
- Gäste-Bad
- Gäste-Bad
- Gäste-Bad
- Hauswirtschaftsraum
- Abstellraum
- Ausblick Küche
- Ausblick Terrasse
- Energieausweis Seite 1
- Energieausweis Seite 2
Interessiert an Exklusive lichtdurchflutete Eigentumswohnung auf dem Werder mit Blick auf die Elbe und großer Sonnenterrasse Richtung Süden?
Ihre Anfrage zu diesem Projekt











































